敷地34坪広々バルコニーペットと暮らすランドリールーム

子どもも愛猫も、みんながのびのび暮らす家

  • 耐震・免震・制震
  • 高気密・高断熱
  • 省エネ・創エネ・エコ(eco)
  • 通風・採光

家族の時間を育む開放的なLDK。バルコニーは暮らしを楽しむ、もうひとつの場所に

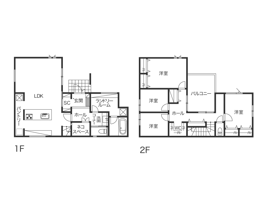
延床面積
111.77m2 (33.8坪)
敷地面積
114.25m2 (34.5坪)
竣工年月
-
工法
木造軸組

これから大きくなるお子さんたちのために計画した、Kさん家族の家づくり。
のびのびとした広さにこだわったLDKは、どこにいても家族の気配を感じられる一体感のある設計に。ナチュラルで落ち着きのあるインテリアが、居心地のいい雰囲気をつくり出している。
見晴らしのいいオープンキッチンは、料理をしながらお子さんたちを見守ることができ、自然と会話が生まれる場に。
「子ども達がこれから自分で食器を運ぶなど、お手伝いの習慣が身についたらうれしいですね」とKさん。
暮らしやすさを考えた工夫も随所に。キッチンにはリビング側からも出入りできる大容量のパントリーを設置。また玄関には家族用のシューズクロークを設け、リビングへ直接行き来できる便利な動線を整えた。
毎日を楽しむアイデアも見逃せない。夏にはプール遊びができるほどの広いバルコニーは、半透明の手すりで視線を程よく遮りながら、外に広がりを感じられる設計に。さらに階段下を利用して愛猫のための専用部屋やキャットドアを設け、自由に行き来できる工夫をプラスした。
毎朝、窓から差し込む光を感じるのが心地よいと話すKさん。「出かける時も帰宅した時も、ほっとできる家になりました」と語ってくれた。
長期優良住宅の確かな性能を土台に、デザインと暮らしやすさが寄り添い、家族を長く支えるわが家が完成した。